Foto levereras av Google Street View och kan vara oprecist:
Butikslokal att hyra, Upplands-Bro, Kungsängen, Örnäsvägen 10
Örnäsvägen 10, Upplands-Bro- Butikslokal att hyra
- 1 048 m2
Örnäsvägen 10, Upplands-Bro
- Butikslokal att hyra
- 1 048 m2
FÅ MER INFO OM LOKALEN
Du länkas till en annan portal, som kan kan kräva betalning eller skapande av en använderprofil
Butikslokal att hyra, Upplands-Bro, Kungsängen, Örnäsvägen 10
ADR Fastighetsförvaltning AB
Glenn Rickardsson
tlf: +46 (0) 76 496 42 44
Se e-postadressxxxxxxxxxxxxxxx
Glenn Rickardsson
tlf: +46 (0) 76 496 42 44
Se e-postadressxxxxxxxxxxxxxxx
PRO-HYRESVÄRD
Läs merLäs om hyresvärd
Nu finns chansen att förhyra en fantastisk herrgård vackert belägen intill Örnässjön.
Vi söker en hotelloperatör eller liknande verksamhet som kan bedriva hotell-, restaurang- eller besöksnäringsverksamhet i fastigheten.
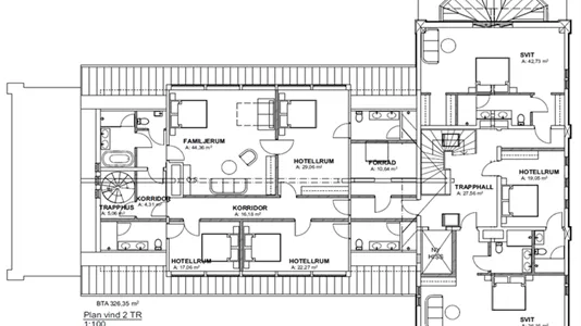
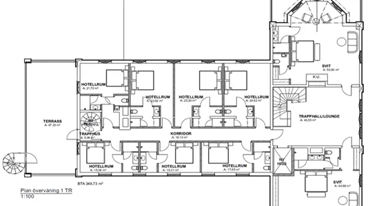
Huvudbyggnaden omfattar totalt 1048 kvadratmeter, vilka fördelas över 24 rum och kök på 2,5 plan ovan mark i vinkel samt ett inrett källarutrymme. Här erbjuds en ståndsmässig fastighet i kombination med natursköna och rogivande omgivningar
Fastigheten är vackert belägen invid Örnässjön, strax norr om Kungsängen, med en omedelbar kontakt med omgivande Örnässjön och Lillsjön. Centrala Stockholm nås inom cirka 30 kilometer, Enköping inom cirka 40 kilometer och Arlanda inom cirka 25 kilometer. Centrala Kungsängen nås inom cirka 5 kilometer, här finns ett stort och varierat utbud av kommersiell och offentlig service. Inom cirka 2 kilometer nås Stora COOP i Brunna. Allmänna kommunikationer i form av buss nås inom cirka 1,5 kilometer. Fastigheten ligger nära både Kungsängens golfklubb och Bro Hofs golfbana.
En ridanläggning gränsar till Fastigheten, vilket skapar bra möjligheter för hästhållning.
Markarealen fördelas över plan och öppen mark i kombination med lövträdsbeklädda partier och kör samt parkeringsytor. Från Örnäsvägen leder en vacker grusbelagd allé fram till huvudbyggnaden.
Huvudbyggnadens äldsta delar bedöms härstamma från 1700-talet och är om- och tillbyggd vid flera tillfällen.
Fastigheten erbjuda goda förutsättningar att bedriva verksamhet inom flera områden. Fastigheten kan även användas som tex ambassad.
Huvudbyggnaden omfattar totalt 1048 kvadratmeter, vilka fördelas över 24 rum och kök på 2,5 plan ovan mark i vinkel samt ett inrett källarutrymme. Här erbjuds en ståndsmässig fastighet i kombination med natursköna och rogivande omgivningar
Fastigheten är vackert belägen invid Örnässjön, strax norr om Kungsängen, med en omedelbar kontakt med omgivande Örnässjön och Lillsjön. Centrala Stockholm nås inom cirka 30 kilometer, Enköping inom cirka 40 kilometer och Arlanda inom cirka 25 kilometer. Centrala Kungsängen nås inom cirka 5 kilometer, här finns ett stort och varierat utbud av kommersiell och offentlig service. Inom cirka 2 kilometer nås Stora COOP i Brunna. Allmänna kommunikationer i form av buss nås inom cirka 1,5 kilometer. Fastigheten ligger nära både Kungsängens golfklubb och Bro Hofs golfbana.
En ridanläggning gränsar till Fastigheten, vilket skapar bra möjligheter för hästhållning.
Markarealen fördelas över plan och öppen mark i kombination med lövträdsbeklädda partier och kör samt parkeringsytor. Från Örnäsvägen leder en vacker grusbelagd allé fram till huvudbyggnaden.
Huvudbyggnadens äldsta delar bedöms härstamma från 1700-talet och är om- och tillbyggd vid flera tillfällen.
Fastigheten erbjuda goda förutsättningar att bedriva verksamhet inom flera områden. Fastigheten kan även användas som tex ambassad.
Information och data
Denna restauranglokal, som även kan användas till Restaurang ligger på Örnäsvägen i Upplands-Bro. Upplands-Bro ligger i kommunen Upplands-Bro, som ligger i Stockholms län. Lokalen är totalt 1048 m2.